KOPUTA 3x
sündmusstuudio Pärnus
Rendi koosoleku, seminari, koolituse, sünnipäeva, esitluse, töötoa, inspiratsioonipäeva, nõuastamise, vastuvõtu, kursuse, firmapeo, meeskonnaürituse või mõne muu võimaliku koosviibimise ehk tegevuse jaoks. Olemised nii suure laua taga töötoaks, kui teatristiilis seminariks või püstijalu vastuvõtuks.
Ja kui sul endal konkreetset ideed pole, siis me korraldame sulle meeldejääva päeva koos tulede ja viledega – sina lase elul lihtsalt end kanda!
Facebook * Instagram * Puhkaeestis * Business Pärnu
Teatri stiilis
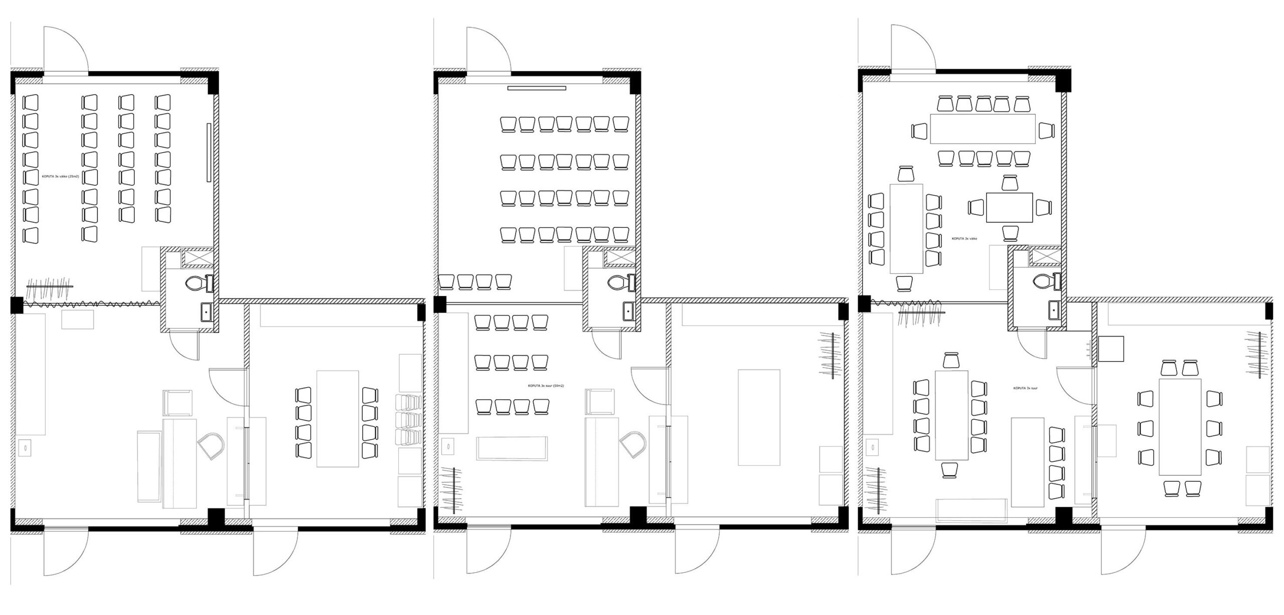
KOPUTA 3x väike (25m2) 20 inimest
KOPUTA 3x suur (50m2) 35-40 inimest
KOPUTA 3x väike (25m2) 15 inimest
KOPUTA 3x suur (75m2) 35-40 inimest
Tegutseme koos Vaas&Vaas avatud ateljee & stuudiopoe ning Nordic Verdure floristika- ja kujundusstuudioga, kokku on meil üks mõnus loominguline kooslus, kus saad kohe kingiriiulist osta või tellida personaalse ja unikaalse Helje maalitud kingi, tellida lillekimbu või ruumideko, osaleda erinevates töötubades, pidada enda või maimukese sünnipäeva ning firmapidu ja näha reaalselt laivis kuidas kunstnik Heljel Vaasi tooted valmivad ning olla hetk “köögis”, kus imed/asjad/looming valmivad.
Päris mitu põhjust läbi astuda onju;)
Oled oodatud
Suur Jõe 63, Waldhofi Ärimaja, Pärnu
K-R 11-17 L 11-14
Muul ajal kokkuleppel + 372 56 460045
Hinnapakkumiseks kirjuta: kati@vaasvaas.ee või helista +372 56460045
Partnerid:
